Расчет, выбор оборудования, монтаж
Тепловые насосы. Расчет, выбор оборудования, монтаж
Принцип действия теплового насоса
Наряду с поисками и освоением традиционных источников (газ, нефть), перспективным направлением является использование энергии, накапливаемой в водоемах, грунте, геотермальных источниках, технологических выбросах (воздух, вода, стоки и др.). Однако температура этих источников довольно низкая (0–25 °С) и для эффективного их использования необходимо осуществить перенос этой энергии на более высокий температурный уровень (50–90 °С). Реализуется такое преобразование тепловыми насосами (TH), которые, по сути, являются парокомпрессионными холодильными машинами (рис.1).
Рис.1 Схема гидравлическая теплового насоса:

1 - компрессор; 2 - источник теплоты низкого уровня (ИНТ); 3 - испаритель теплового насоса;
4 – конденсатор теплового насоса; 5 – потребитель теплоты высокого уровня (ПВТ);
6 – низкотемпературный теплообменник; 7 – регулятор потока хладагента;
8 – высокотемпературный теплообменник.
Низкотемпературный источник (ИНТ) нагревает испаритель (3), в котором хладагент кипит при температуре –10 °С…+5 °С. Далее тепло, переданное хладагенту, переносится классическим парокомпрессионным циклом к конденсатору (4), откуда поступает к потребителю (ПВТ) на более высоком уровне.
Тепловые насосы используют в различных отраслях промышленности, жилом и общественном секторе. В настоящее время в мире эксплуатируется более 10 млн. тепловых насосов различной мощности: от десятков киловатт до мегаватт. Ежегодно парк ТН пополняется примерно на 1 млн. штук. Так, в Стокгольме тепловая насосная станция мощностью 320 МВт, используя зимой морскую воду с температурой +4 °С, обеспечивает теплом весь город [4]. В 2004 г. мощность тепловых насосов, установленных в Европе, составляла 4 531 МВт, а во всем мире тепловыми насосами была получена тепловая энергия эквивалентная 1,81 млрд. м3 природного газа. Энергетически эффективны тепловые насосы, использующие геотермальные и подземные воды. В США федеральным законодательством утверждены требования по обязательному использованию геотермальных тепловых насосов (ГТН) при строительстве новых общественных зданий. В Швеции 50 % всего отопления обеспечивается геотермальными тепловыми насосами. К 2020 г. по прогнозам Мирового энергетического комитета доля геотермальных тепловых насосов составит 75 %. Срок службы ГТН составляет 25–50 лет.
Тепловые насосы подразделяют по принципу действия (компрессорные, абсорбционные) и по типу цепи передачи тепла «источник-потребитель». Различают следующие типы тепловых насосов: воздух-воздух, воздух-вода, вода-воздух, вода-вода, грунт-воздух, грунт-вода, где первым указывается источник тепла. Если для отопления используется только тепловой насос, то система называется моновалентной. Если дополнительно к тепловому насосу подключается другой источник тепла, работающий отдельно или параллельно с тепловым насосом, система называется бивалентной.
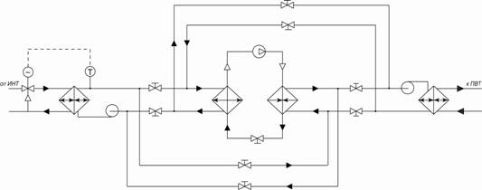
Тепловой насос с гидравлической обвязкой (водяными насосами, теплообменниками, запорной арматурой и др.) называют тепловой насосной установкой. Если среда, охлаждаемая в испарителе, такая же, как и среда, нагреваемая в конденсаторе (вода-вода, воздух-воздух), то путем изменения потоков этих сред можно изменить режим ТН на обратный (охлаждение на нагрев и наоборот). Если среды – газы, то такое изменение режима называют обратимым пневматическим циклом, если жидкости – обратимым гидравлическим циклом (рис.2).
Рис.2. Схема теплового насоса с обратимым гидравлическим циклом

В случае, когда обратимость цикла осуществляется изменением направления хладагента с помощью клапана обратимости цикла, используют термин «тепловой насос, работающий в обратимом холодильном цикле».
Низкопотенциальный источник – воздух
В системах кондиционирования широко используются тепловые насосы типа «воздух-вода». Наружный воздух продувается через испаритель, а тепло, отводимое от конденсатора, нагревает воду, используемую для обогрева помещения в помещении (рис.3).
Рис.3. Схема теплового насоса «воздух- вода»

Преимуществом таких систем является доступность низкопотенциалного источника тепла (воздуха). Однако температура воздуха изменяется в большом диапазоне, достигая отрицательных значений. При этом эффективность теплового насоса сильно снижается. Так, изменение температуры наружного воздуха с 7 °С до минус 10 °С приводит к снижение производительности теплового насоса в 1,5–2 раза.
Для подачи воды от ТН к обогреваемым помещениям в них устанавливаются теплообменники, именуемых в литературе «фэнкойлами». Вода к фэнкойлам подается гидравлической системой – насосной станцией (рис.4).
Рис.4. Схема насосной станции:

Р – манометры; РБ – расширительный бак; АБ – аккумулирующий бак; РП – реле протока; Н – насос;
БК – балансный клапан; Ф – фильтр; ОК – обратный клапан; В – вентиль; Т – термометр;
ПК – предохранительный клапан; ТП – теплообменник «фреон–жидкость»; ТХК – трехходовой клапан; КПЖ – клапан подпитки жидкости; КПВ – клапан подпитки воздуха; КВВ – клапан выпуска воздуха
Для повышения точности поддержания температуры в помещении и уменьшения инерционности в гидравлической системе устанавливаются аккумулирующие баки. Емкость аккумулирующего бака может быть определена по формуле [8]:
![]() |
(1) |
Где
![]() |
- холодопроизводительность ТН, кВт; |
![]() |
- объем охлаждаемых помещений, м3; |
![]() |
- количество воды в системе, л; |
| Z | - количество ступеней мощности ТН. |
Если VАБ получится отрицательным, то аккумулирующий бак не устанавливают.
Для компенсации температурного расширения воды в гидравлической системе устанавливают расширительные баки. Расширительные баки устанавливаются на всасывающей стороне насоса. Объем расширительного бака определяется по формуле [2]:
![]() |
(2) |
Где
где Vсист – объем системы, л;
k – коэффициент объемного расширения жидкости (вода 3,7·10-4, антифриз (4,0–5,5)·10-4);
ΔT – перепад температуры жидкости (при работе только в режиме охлаждения);
ΔT = tокр – 4 °С; при работе в режиме теплового насоса ΔT=60 °С – 4 °С = 56 °С);
Рпред – настройка предохранительного клапана.
Давление в системе (Рсист) зависит от взаимного расположения насосной станции и конечного потребителя (фанкойла). Если насосная станция расположена ниже конечного потребителя, то давление (Рсист) определяют как максимальный перепад высот (в барах) плюс 0,3 бара. Если насосная станция расположена выше всех потребителей, то Рсист = 1,5 бара.
Расширительный бак предварительно накачивается воздухом до давления на 0,1–0,3 бара меньше расчетного, а после монтажа давление доводится до нормы.
Конструкция расширительных баков показана на Рис.5.
Рис.5. Конструкция расширительного бака:

1 – положение мембраны перед установкой (предварительная накачка воздухом на 0,1–0,3 бара);
2 – положение мембраны после подключения бака к сети;
3 – положение мембраны при температурном расширении жидкости.
Выпускаются расширительные установки (рис. 4.6), поддерживающие давление с водяной стороны в больших по объему системах отопления и кондиционирования. Установка оснащена свободно программируемым процессором и может быть подсоединена с помощью интерфейса к центральному пульту управления. Это значительно упрощает контроль над функционированием системы.
Технические характеристики:
Объем, л 200–5 000;
Максимальное избыточное давление, бар 10,0;
Максимальная температура, °С 120.
Реле протока (РП) отключает холодильную машину при отсутствии потока жидкости, что предупреждает замерзание жидкости в теплообменнике (ТП). Трехходовой клапан смешивает два потока жидкости (А и В), поддерживая заданную температуру жидкости. Управляется трехходовой клапан микроконтроллером.
Рис.6. Расширительная установка для систем отопления и кондиционирования

Конструкция трехходового клапана приведена на рис.7.
Рис.7. Трехходовой клапан для регулировки расхода жидкости


В нижнем крайнем положении запорного конуса проход потоку В закрыт, в верхнем положении конуса закрыт проход потоку А. Для перемещения запорного конуса на весь ход от одного до другого крайнего положения подается управляющее напряжение питания на электропривод в диапазоне от 0 до 10 В. Питание электродвигателя – 24 В.
С выхода привода выдается контрольный сигнал о положении запорного конуса. Время полного хода конуса составляет 100–150 секунд. Имеется возможность ручного перемещения конуса с помощью шестигранного ключа.
Перетечки жидкости при закрытом канале не превышают 1 % от пропускной способности. В случае неисправности трехходового клапана и гидравлической системы после трехходового клапана жидкость будет циркулировать через обратный клапан (ОК).
Для установки расчетного расхода жидкости в системе используется балансировочный клапан, который представляет собой высокоточный клапан ручного или автоматического регулирования. На балансировочном клапане имеются выходы для измерения расхода и давления жидкости. Выпускаются балансировочные клапаны, настраиваемые наладочным контроллером. Для настройки балансировочного клапана в наладочный контроллер вводятся расчетные значения расхода и давления, после чего контроллер автоматически устанавливает балансировочный клапан в необходимое положение.
К расширительному баку подключаются клапаны подпитки жидкости (КПЖ) и клапаны подпитки воздуха (КПВ). При установке фильтра (Ф) необходимо обращать внимание на направление потока жидкости через фильтр. В самой верхней точке гидравлической схемы устанавливается автоматический воздуховыпускной клапан (ВК). Предохранительный клапан настраивается по предельно допустимому давлению самого слабого элемента в сети плюс 1 бар (7–10 бар).
При необходимости работать по бивалентной схеме можно параллельно ТН подключить бойлер с электроподогревом по схеме, показанной на рис.8.
Рис.8 Схема подключения электрического котла в систему теплового насоса

Тепловые насосы с водяными источниками тепла
В тепловых насосах с водяными источниками тепла (реки, озера, моря) используется накопленная энергия Солнца. Эта энергия является идеальным источником для тепловых насосов, так как она поступает непрерывно, хотя и является менее доступной, чем воздух. Температура воды в незамерзающих водоемах не опускается ниже 4 °С, а артезианская вода имеет почти постоянную температуру 10–12 °С. Учитывая, что при отборе тепла воду нельзя охлаждать ниже 0 °С, перепад температуры на теплообменнике составляет несколько градусов. При этом для увеличения отбора необходимого количества тепла требуется увеличивать расход воды. Для ТН небольшой мощности не рекомендуется качать грунтовую воду с глубины более 15 м. В противном случае потребуется большие затраты на насосы и их эксплуатацию.
Рис.9. Тепловой насос, использующий тепло грунтовых вод

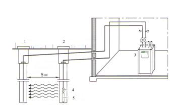
Контур отбора тепла из водоема может быть открытым или закрытым. В первом случае вода из водоема перекачивается через охладитель, охлаждается и возвращается в водоем (рис. 4.9). Такая система требует фильтрации подаваемой в охладитель воды и периодической чистки теплообменника. Как правило, устанавливается промежуточный разборный теплообменник. Забор и возврат воды должны осуществляться в направлении потока грунтовых вод, чтобы исключить «байпасирование» воды. Заборная магистраль должны быть с обратным клапаном (4), располагаемым в точке забора или после глубинного насоса (5). Подвод и отвод грунтовых вод к тепловому насосу должен быть защищен от замораживания и прокладывается с наклоном в сторону скважины.
Расстояние между заборной (2) и возвратной (1) скважинами должно быть не менее 5 м. Точка выхода воды в возвратной скважине должна быть ниже уровня грунтовых вод.
Объемный расход воды определяется из холодопроизводительности ТН
![]() |
(3) |
Где
| L | - объемный расход воды, м3/ч; |
| Cp |
- удельная теплоемкость воды, равная 1,163 10-3 кВт ч/кг К; |
![]() |
- плотность воды, 1000 кг/м3; |
![]() |
- разность температур заборной и возвратной воды. |
| Откуда | ![]() |
(4) |
Если принять Qx = 12 кВт (определяется по паспорту теплового насоса),
| а | ![]() |
=4К, | то | ![]() |
м3/ч |
Закрытый контур укладывается на дно водоема. Ориентировочное значение тепловой мощности на 1 м трубопровода закрытого контура составляет порядка 30 Вт [2]. То есть для получения 10 кВт тепла контур должен иметь длину 300 м. Для того, чтобы контур не всплывал, на 1 погонный метр необходимо устанавливать груз около 5 кг.
Тепловые насосы с грунтовыми теплообменниками
В грунтовых ТН используется тепловая энергия, накопленная в грунте за счет нагрева ее Солнцем или другими источниками. Аккумулированное грунтом тепло трансформируется с помощью горизонтально проложенных грунтовых теплообменников (которые также называют грунтовыми коллекторами) или с помощью вертикально расположенных теплообменников (грунтовые зонды).
Как правило, грунтовые теплообменники изготавливаются из полиэтиленовых или металлопластиковых труб диаметром 25–40 мм.
При горизонтальном исполнении (рис.10) трубопровод, в котором циркулирует жидкость, зарывается в землю на глубину ниже уровня промерзания почвы (1,2–1,5 м). Минимальное расстояние между трубами 0,7–1,0 м. В зависимости от диаметра трубы на каждый квадратный метр площади забора тепла может быть проложено 1,4–2,0 м трубы. Длина каждой ветви горизонтального коллектора не должна превышать 100 м, иначе потери давления в трубе и требуемая мощность насоса будут слишком велики.
Рис.10. Тепловой насос с грунтовыми коллекторами

Количество трансформируемого тепла, а, следовательно, и размер необходимой поверхности для расположения грунтового коллектора существенно зависит от теплофизических свойств грунта и климатических условий местности. Теплофизические свойства, такие как теплоемкость и теплопроводность, очень сильно зависят от состава и состояния грунта. В этом отношении определяющим является доля воды, содержание минеральных составляющий (кварц, полевой шпат), а также доля и размер пор, заполненных воздухом. Аккумулирующие свойства и теплопроводность грунта тем выше, чем больше доля воды, минеральных составляющих и чем ниже содержание пор.
Среднее значение удельной тепловой мощности грунта приведено в таблице 1.
Таблица 1. Среднее значение удельной тепловой мощности грунта
| Тип грунта | Удельная мощность грунтового коллектора, Вт/м2 | Удельная мощность грунтового зонда, Вт/м |
| Песчаный сухой | 10–15 | 20 |
| Песчаный влажный | 15–20 | 40 |
| Глинистый сухой | 20–25 | 60 |
| Глинистый влажный | 25–30 | 80 |
| Водоносный слой | 30–35 | 80-100 |
Требуемая площадь для расположения коллектора рассчитывается по формулам (5) и (6 )
![]() |
(5) |
![]() |
(6) |
Где
![]() |
- теплопроизводительность ТН, Вт; |
![]() |
- потребляемая мощность ТН от сети, Вт; |
| g | - удельная мощность грунтового коллектора, Вт/м2. |
Так, если холодопроизводительность ТН составит 10 кВт, то в песчаном влажном грунте (g = 20 Вт/м2) для размещения коллектора потребуется площадь
![]() |
,м2 |
Чтобы трансформировать тепло с такой площади необходимо проложить в грунте полиэтиленовые трубы диаметром 25 × 2,3 мм и длиной 500 × 1,4 = 700 м. (1,4 – удельный расход трубы на квадратный метр площади). Трубы необходимо прокладывать отдельными контурами по 100 м каждый, т. е. 7 контуров.
Все распределители и коллекторы следует располагать в доступных местах для осмотра, например, в отдельных распределительных шахтах вне дома или в подвальной шахте дома. Фитинги должны изготавливаться из коррозионностойких материалов. Все трубопроводы в доме и вводы через стену должны быть теплоизолированы с обеспечением диффузионной непроницаемости для пара, чтобы избежать появления конденсата, т.к. в подающей и обратной магистралях находится холодный (относительно температуры подвала) теплоноситель.
При вертикальном исполнении грунтового зонда бурится скважина глубиной 60–200 м, в которую опускается несколько U-образных трубопроводов (рис.11).
Рис.11. Тепловой насос с грунтовым зондом
![]() |
| а |
![]() |
| б |
а – общая схема, б – схема грунтового зонда
1 – обратная магистраль, 2 – подающая магистраль, 3 – петлевой зонд, 4 – защитный колпачок
В глинистом влажном грунте при холодопроизводительности теплового насоса 10 кВт длина зонда (глубина скважины) должна быть
![]() |
,м |
Целесообразно сделать 2 петли с глубиной залегания 50 м диаметром Dy = 32 × 3 мм. Общая длина труб составит 200 м . Скважина с трубами заливается бетонитом, хорошо проводящим тепло. Количество теплоносителя определяется внутренним объемом труб коллектора (зонда) и подводящих труб. Диаметр подводящих труб берут на размер большим, чем труба коллектора. В нашем примере при трубе зонда Dy = 32 × 3 мм и подводящей трубе Dy = 40 × 2,3 мм длиной 10 м внутренний объем (таблица 2)с учетом подающей линии составит 2 × 100 × 0,531 +10 × 0,984 = 116,04 л. Расход теплоносителя теплового насоса находят по паспорту на тепловой насос. Примем 1600 л/ч. Тогда расход на одну петлю составит 800 л/ч.
Таблица 2. Удельный внутренний объем труб
| Типоразмер Dy × t, мм | 25 × 2,3 | 32 × 3,0 | 40 × 2,3 | 50 × 2,9 | 63 × 3,6 |
| Объем на метр трубы, л | 0,327 | 0,531 | 0,984 | 1,59 | 2,445 |
Потери давления в трубах зависят от диаметра труб, плотности и расхода теплоносителя и определяется по данным завода-изготовителя труб. Так, для труб HDPE (полиэтилен высокой плотности) 32 × 3 мм и расходе 800 л/ч составляет 154,78 Па/м, а для труб диаметром 40 × 2,3 – 520,61 Па/м [7]. Откуда общее падение давления в сети составит 36161,1 Па, что необходимо учесть при выборе насоса.
Срок службы грунтового коллектора зависит от кислотности почвы: при нормальной кислотности (pH =5,0) – 50–75 лет, при повышенной (pH >5,0) – 25–30 лет.
Эффективность тепловых насосов
В качестве основного показателя эффективности теплового насоса применяется коэффициент преобразования или отопительный коэффициент СОР (coefficient of performance), равный отношению теплопроизводительности теплового насоса к мощности, потребляемой компрессором. В режиме охлаждения для оценки эффективности применяется холодильный коэффициент EER (energy efficiency ratio), равный отношению холодопроизводительности теплового насоса к мощности, потребляемой компрессором.
![]() |
(4) |
![]() |
(5) |
Где
QR - энергия, отдаваемая ПВТ;
QC - тепловая энергия, отбираемая у ИНТ;
N - затраченная электроэнергия;
TK и T0 - температуры конденсации и кипения в тепловом насосе.
Температура TK определяется давлением конденсации хладагента в ТН, а T0 – температурой ИНТ. Так, если принять T0 = 281,16 К (8 °C) и TK = 323,16 К (50 °С), то COP будет равен 7,7. Если тепло отводится водой, то различные хладагенты позволяют достичь следующих температур [1]: R717, R502, R22 – около +50 °С, R134a – +70 °С, R142 – +100 °С.
Следует помнить об основном правиле, вытекающем из (4): чем меньше разность температур между и источником и приемником тепла в тепловом насосе, тем выше коэффициент преобразования.
Когда в тепловых насосах одновременно используется тепло и холод (например, охлаждение холодильных камер и нагрев офисных помещений), то
![]() |
(6) |
![]() |
(7) |
При указанных выше температурах суммарный коэффициент преобразования может достигать 12, 7, что характеризует высокую энергетическую эффективность теплового насоса. Реальные СОР несколько ниже и составляют порядка 3–5.
В абсорбционных тепловых насосах коэффициент преобразования ниже, чем в компрессионных, из-за больших потерь в элементах абсорбционного контура. Так, при использовании грунтовых вод с T0 = 281,16 К (8°C) и температурой полезного тепла TK = 323,16 К (50 °С), коэффициент преобразования абсорбционного ТН составит всего 1,45 [1]. Температура полезного тепла в абсорбционных тепловых насосах зависит также от температуры нагрева генератора. При указанных выше температурах нагрев генератора должна быть не меньше 150 °С.
За период отопительного сезона (октябрь–май) для обогрева 100 м2 жилого помещения электрическим котлом потребуется 37440 кВт электроэнергии, а тепловым насосом – 12024 кВт.
Применение ТН в 1,2–1,5 раза выгоднее самой эффективной газовой котельной.
Выбор оборудования для тепловых насосов
Выбор оборудования начинается с расчета теплопотребления здания. В настоящее время имеется разнообразные программы для расчета на ПК теплопотребления, которые можно найти в Интернете или получить у поставщиков оборудования.
Ориентировочный расчет можно сделать исходя из отапливаемой площади здания и количества потребляемой горячей воды. Также в случае периодических плановых отключений электроэнергии необходимо увеличить тепловую мощность теплового насоса. Если время отключения электроэнергии не превышает 2-х часов, этот фактор можно не учитывать.
Удельное теплопотребление зависит от типа здания:
- здание с низким потреблением (современные материалы, утепление стен, окна из стеклопакетов) – 40 Вт/м2;
- новостройка, хорошая теплоизоляция – 50 Вт/м2;
- здание со стандартной теплоизоляцией – 80 Вт/м2;
- старые постройки без особой изоляции – 120 Вт/м2.
Учет дополнительной тепловой мощности для компенсации потерь тепла на время плановых отключений электроэнергии производится следующим образом.
Определяют суточное (за 24 ч) потребление тепла
![]() |
(8) |
Где
QТН - теплопроизводительностьТН, кВт;
tотк - время отсутствия электроэнергии.
Расчет дополнительной тепловой мощности для приготовления горячей воды производят исходя потребления одним человеком около 50 л воды с температурой 45 °С, что соответствует 0,25 кВт/чел. Более точный расчет можно выполнить пользуясь данными таблицы 3.
Таблица 3. Суточное потребление горячей воды
| Категория | Потребление воды, л/чел | Удельное теплопотребление, Втч/чел | Теплопотребление для горячей воды, кВт/чел | |
| темп. воды 60°С | темп. воды 45°С | |||
| Низкое потребление | 10-20 | 15-30 | 600-1200 | 0,08-0,15 |
| Стандартное потребление | 20-40 | 30-60 | 1200-2400 | 0,15-0,3 |
| Квартира, занимающая этаж | 32 | 45 | 1800 | 0,225 |
| Одноквартирный жилой дом | 35 | 50 | 2000 | 0,25 |
Вывод.
- Тепловые насосы, использующие возобновляемые источники тепла, являются самым энергетически эффективным отопительным оборудованием.
- Системы, построенные на базе ТН, надежные, безопасные и долговечные.
- Получение тепла посредством теплового насоса – экологически чистый технологический процесс.
- Современное климатическое оборудование позволяет создать ТН с производительностью от десятков кВт до МВт.
Литература.
- В. Мааке, Г.-Ю. Эккерт, Ж.-Л. Кошпен. Учебник по холодильной технике: Пер. с франц. – М.: Издательство Московского Университета, 1998. – 1142 с., ил.
- Рей Д., Макмайкл Д. Тепловые насосы: Пер. с англ. – М.:Энергоиздат, 1982. – 224 с., ил.
- Эль Садин Хасан. Выбор оптимальных параметров системы теплохолодоснабжения жилого дома//Холодильная техника, 2003, №3, с.18–21.
- Овчаренко В.А. Овчаренко А.В. Використання теплових насосів//Холод М+Т, 2006, №2 с. 34–36.
- Пять шагов на пути к избавлению от метановой зависимости//Отопление Водоснабжение Вентиляция + кондиционеры, 2006, №1, с. 30–41.
- Бондарь Е.С., Калугин П.В. Энергосберегающие системы кондиционирования воздуха с аккумуляцией холода//С.О.К., 2006, №3, с. 44–48.
- Белова. Системы кондиционирования с чиллерами и фанкойлами
























